euista de limites de temperatura do aplicativo
Materiais Temperatura média℃ Materiais Temperatura média℃
PVC-C -20℃~95℃ PVC-U -5℃~45℃
FRPP -20℃~120℃ UHE -20℃~ 110℃
PVDF 40℃~ 150℃

Características estruturais do produto

1. Excelente resistência ao calor
O polipropileno reforçado é um material obtido pela adição de fibra de vidro ao PP puro, ampliando sua gama de aplicações. Sua maior resistência ao calor supera a resistência resistente à resistência mecânica do PP, mantendo sua excelente resistência à corrosão e aumentando sua temperatura operacional.
2. Alta resistência mecânica e excelente resistência ao desgaste
Sua resistência, resistência, dureza e resistência ao calor superam como o polietileno de baixa pressão.
Seu baixo coeficiente de expansão linear fornece excelente resistência a ácidos, ácidos e calor.
3. Excelente resistência ao impacto
Encolhimento da moldagem: 1,0-2,5%, diminuindo significativamente o encolhimento e melhorando significativamente a rigidez. Oferece excelentes propriedades elétricas e isolamento de alta frequência, não afetado pela umidade.
4. Ampla gama de aplicações
O FRPP, devido ao seu baixo custo de material, longa vida útil e fácil instalação, é amplamente utilizado em sistemas de ligações para as indústrias químicas, de fibra química, cloro-álcali, corante, abastecimento e drenagem de água, alimentação, farmacêutica, tratamento de esgoto e eletrólise.

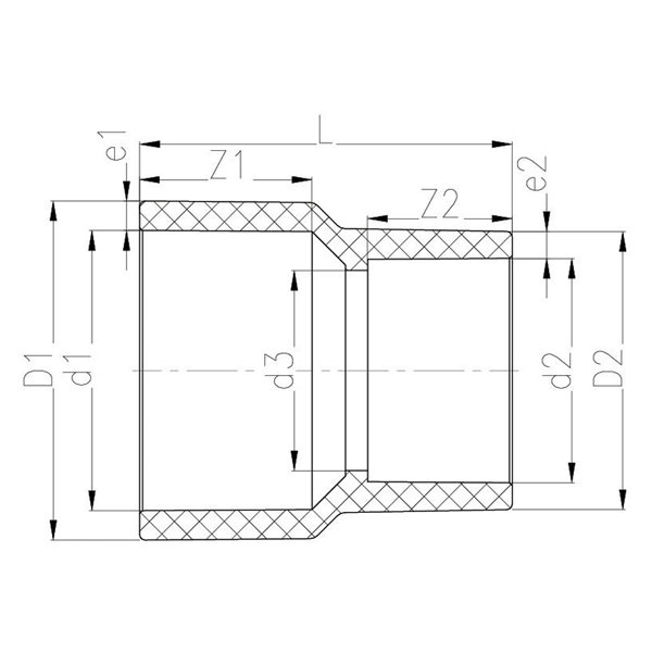
Redutor FRPP

DN D1 D2 d1 d2 d3 eu Z1 Z2 e1 e2
20*15 33 28 25 20 16 46.5 19 16 4 4
25*15 40 33 32 20 16 54.5 22 16 4 6.5
25*20 40 33 32 25 21 54.5 22 19 4 4
32*15 50 33 40 20 16 67 26 16 5 6.5
32*20 50 32.5 40 25 21 67 26 19 5 4
32*25 50 40 40 32 28 68 26 22 5 4
40*25 62 40 50 32 28 74 31 22 6 4
40*32 62 49.5 50 40 36 80 31 26 6 5
50*15 74.5 40 63 20 16 80.5 37.5 16 6 10
50*20 74.5 40 63 25 21 80.5 37.5 19 6 7.5
50*25 74.5 40 63 32 28 80.5 37.5 22 6 4
50*32 74.5 50 63 40 36 85 37.5 26 6 5
50*40 74.5 62 63 50 45 92 37.5 31 6 6
65*32 89 50 75 40 36 97 43.5 26 7 5
65*40 89 62 75 50 45 103 43.5 31 7 6
65*50 89 74.5 75 63 58 110.5 43.5 37.5 7 6
80*40 105.5 62 90 50 45 108.5 51 31 8 6
80*50 105.5 74 90 63 58 114 51 37.5 8 5.5
80*65 105.5 89.5 90 75 69 127.5 51 44 8 7.5
100*40 124.5 65 110 50 45 129 61 31 7 7.5
100*50 124.5 75 110 63 58 137 61 37.5 7 6
100*65 124.5 90 110 75 69 142 61 43.5 7 7.5
100*80 124.5 105 110 90 84 149.5 61 50.5 7 7.5
125*50 159 76 140 63 58 151 76 37.5 9.5 6.5
125*65 159 90 140 75 69 158 76 43.5 9.5 7.5
125*80 159 105 140 90 82 167.5 76 51 9.5 7.5
125*100 159 124.5 140 110 102 180 76 61 9.5 7
150*80 180.5 104.5 160 90 82 172.5 86 51 10 7
150*100 180.5 127 160 110 102 186 86 61 10 8.5
150*125 180.5 159.5 160 140 130 208 86 76 10 9.5
200*80 244 104.5 225 90 82 206 118.5 51 9.5 7
200*100 244 124.5 225 110 102 216 118.5 61 9.5 7
200*125 244 158 225 140 130 231.5 118.5 76 9.5 9
200*150 244 182 225 160 150 253.5 118.5 86 9.5 11
Feedback da mensagem
[#entrada#]
Sobre nós
Kaixin Pipeline Technologies Co., Ltd.
Fundada em 1999, Kaixin Pipeline Technologies Co., Ltd. é uma empresa de alta tecnologia que integra P&D, fabricação, vendas e serviços. A empresa possui várias certificações de prestígio, incluindo Empresa Nacional de Alta Tecnologia, PME Especializada e Sofisticada “Pequeno Gigante”, Campeã Nacional de Produto Único (Cultivo), PME Provincial de Base Tecnológica, PME Especializada e Sofisticada de Ningbo, Campeã de Produto Único de Ningbo (Cultivo), Centro de P&D de Tecnologia de Tubos e Válvulas de Polímero de Ningbo, Fábrica Verde em Nível Distrital, Empresa de Inovação de Gerenciamento Quatro Estrelas de Ningbo e Nível de Maturidade de Capacidade de Gerenciamento de Dados Empresariais 2.
Somos especializados no desenvolvimento, produção e fornecimento de produtos não metálicos resistentes à corrosão para aplicações químicas, incluindo válvulas plásticas, tubos, acessórios para tubos e bombas resistentes à corrosão. Nosso portfólio de produtos abrange materiais como PVC-C, PVC-U, PVDF, PPH e FRPP, com uma ampla gama de tipos e especificações. Notavelmente, nossas válvulas borboleta podem atingir o diâmetro DN1000, enquanto os tubos e conexões se estendem até DN800, atendendo às lacunas do mercado e mantendo nossa vantagem competitiva na indústria.
Guiada pelo princípio “Impulsionado pela tecnologia, acompanhando o ritmo dos tempos”, a Kaixin aloca quase 10 milhões de RMB anualmente para P&D. Garantimos qualidade superior do produto por meio de fabricação automatizada padronizada e fornecimento rigoroso de matérias-primas importadas. Alinhados com a nossa estratégia de desenvolvimento internacional, monitorizamos continuamente as tendências do mercado global e aproveitamos os canais digitais para levar produtos “Made in China” de alta qualidade a clientes em todo o mundo.
Ningbo • Base de P&D e Produção de Fenghua
Com um investimento total de 200 milhões de RMB, a Kaixin Ultra-Pure Pipe Technology (Ningbo) Co., Ltd. estabeleceu um novo laboratório de materiais em colaboração com universidades e institutos de pesquisa, construiu uma base de fabricação moderna e instalou 8 linhas de produção totalmente automatizadas para plásticos modificados e 8 para materiais poliméricos. A instalação é dedicada à pesquisa e desenvolvimento, produção e aplicação de novos plásticos modificados e materiais poliméricos. A Kaixin também está comprometida em atrair os melhores talentos em todas as disciplinas, impulsionando continuamente a inovação de produtos e o desenvolvimento de marcas, com o objetivo de se tornar um líder reconhecido mundialmente em pesquisa e desenvolvimento e fabricação de válvulas, tubos e conexões de polímero.
Certificado de Honra
  • honor
  • honor
  • honor
  • honor
  • honor
  • honor
  • honor
  • honor
  • honor
Notícias